Prodej zrekonstruovaného světlého bytu 4 + 1/L/S/, 92m2, ve velmi žádané lokalitě Praha – Modřany.
Exkluzivně nabízíme ke koupi prostorný světlý byt s krásným výhledem, v klidné a velmi žádané lokalitě Praha - Modřany.
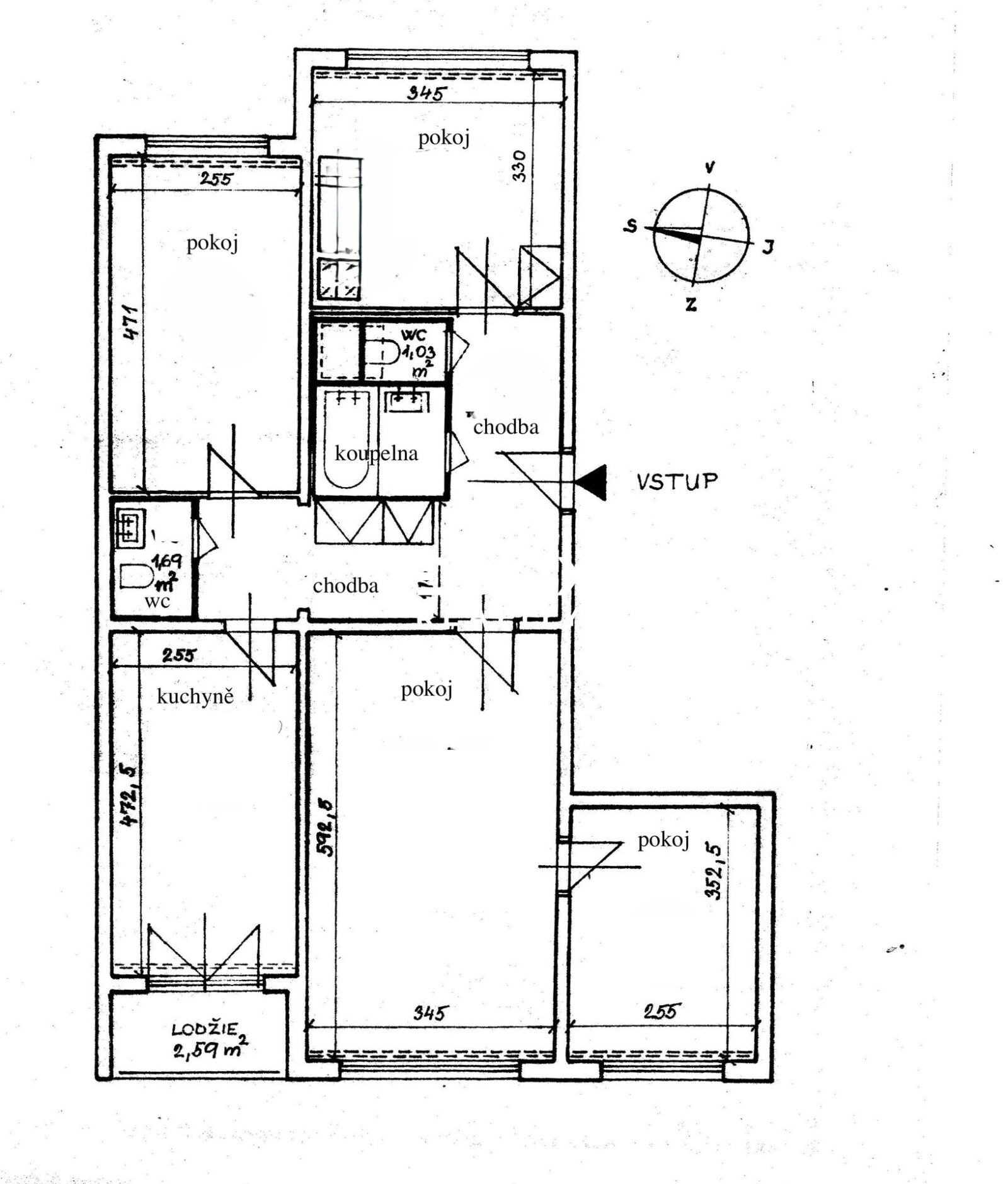
Byt o užitkové ploše 89m2 se nachází v 3. nadzemním podlaží panelového domu.
Byt je dispozičně řešen jako prostorná vstupní chodba. Z chodby je vstup do koupelny se sprchovým koutem, na samostatné WC,2. samostatné WC s komorou, do ložnice, pokoje a do obývacího pokoje, z kterého je vstup do dalšího pokoje. Z chodby je dále vstup do kuchyně a z ní do zasklené lodžie.
Bytová jednotka prošla kompletní, důkladnou a vkusnou rekonstrukcí, která byla dokončena v roce 2022. V rámci rekonstrukce bytu byly vyměněny rozvody elektřiny, vody, položeny lepené podlahy z dubového dřeva, položena nová dlažba, kompletně zrekonstruována koupelna, instalována nová kuchyně včetně spotřebičů, nové omítky, zárubně a interiérové dveře.
Měsíční poplatky spojené s užíváním bytu činí cca 5,200 Kč v případě užívání bytu jednou osobou.
Klidný dům, příjemní sousedé. Ve vnitrobloku je krásné dětské hřiště a komunitní zahrádka. Na sídlišti Na Beránku jsou 3 školky, z toho jedna Montessori, základní škola, dům dětí a mládeže a obchod. Zastávka autobusů cca 250 m. Parkování před domem, bez zón.
Výborná dopravní dostupnost a občanská vybavenost v okolí.
Průkaz energetické náročnosti budovy nebyl předložen, a proto dle zákona uvádíme hodnotu G.
Nejedná se o návrh na uzavření smlouvy (nabídku) ve smyslu § 1731 a §1732 zákona č. 89/2012 Sb., Občanského zákoníku. Společnost Edox reality s.r.o. si vyhrazuje právo uzavření všech smluvních vztahů písemně. Uvedené informace mají pouze informativní charakter a mohou se v průběhu inzerce změnit. Pro více informací kontaktujte přímo makléře.
Číslo zakázky
N03636
Makléř
Daniela Zedková
Obec
Praha
Část obce
Praha 12 - Modřany
Typ nemovitosti
Byty
Typ zakázky
Prodej
Dispozice
4+1
Stav
Velmi dobrý
Vlastnictví
Osobní
Podlaží
3
Druh objektu
Panelová
Celková plocha
92 m2
Užitná plocha
89 m2
Balkon
Ne
Terasa
Ne
Garáž
Ne
Bezbariérový
Ne
Lodžie
Ano
Bazén
Ne
Cena
9.690.000 Kč za nemovitost
MÁTE ZÁJEM O TUTO NEMOVITOST?
NEMOVITOST MŮŽETE VYMĚNIT
Nevyhovuje Vám Váš současný byt nebo dům či jiná nemovitost a chtěli byste jinou? Zajistíme Vám koupi nového bytu, domu či pozemku a zároveň prodej stávajícího. Vše sladíme finančně i časově. Stěhovat se budete jen jednou.